Biệt Thự Thảo Điền siêu đẹp 880m2 của Anh Chị 9x có cách thiết kế tận hưởng cuộc sống ! Ai mê Biệt Thự Đẹp xem chưa???
Ngôi biệt thự 880m2 Quận 2 là tổ ấm hiện đại của một gia đình trẻ, với cách thiết kế ánh sáng tự nhiên tràn ngập", "không gian mở, liền mạch", "tạo cảm giác yên bình"
" Ngôi biệt thự Thảo Điền Quận 2 là tổ ấm hiện đại của một gia đình trẻ, nơi hai vợ chồng 9X và bé yêu cùng nhau tận hưởng cuộc sống.
- Phong cách thiết kế : Minimalist, Scandinavian, Industrial,...
 - Vật liệu chính: Gỗ, đá, bê tông, kim loại,...
 - Màu sắc chủ đạo: Trắng, xám, be, xanh lá,...
 - Các khu vực chức năng: Phòng khách, bếp, phòng ăn, phòng ngủ, phòng làm việc, phòng giải trí,...
 - Các yếu tố đặc biệt: Hồ bơi, sân vườn, giếng trời,...
 
Không gian sống tại bán biệt thự thảo điền có hồ bơi riêng rộng lớn và cách thiết kế hiện đại.
Với thiết kế tối giản, ưu tiên các hình khối đơn giản và vật liệu bền vững, ngôi nhà mang đến cảm giác thanh lịch, tinh tế. Sự kết hợp hài hòa giữa đá tự nhiên, bê tông và gỗ tạo nên một không gian sống vừa ấm cúng, vừa hiện đại, thể hiện rõ cá tính của gia chủ.
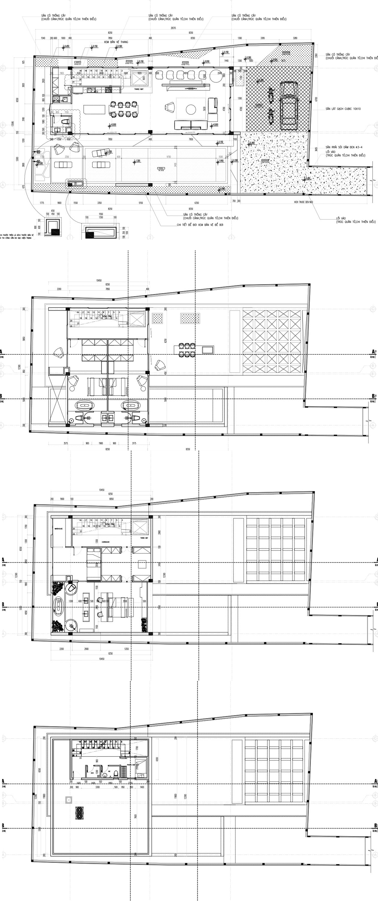
Tầng một của biệt thự được bố trí thông minh, bao gồm phòng khách, bếp ăn và phòng ngủ, tạo thành một không gian mở, liền mạch. Cửa sổ lớn đón ánh sáng tự nhiên tràn ngập, kết nối không gian sống với khu vườn xanh mát và hồ bơi ngay bên cạnh. Tông màu chủ đạo trầm ấm, cùng với nội thất bằng gỗ và chất liệu tự nhiên khác, tạo nên một không gian thư thái và gần gũi với thiên nhiên.
hình ảnh biệt thự sang trọng thảo điền 880m2 Quận 2
Biệt thự thảo điền có thiết kế sang trọng ,phòng ngủ của gia đình được thiết kế để tạo cảm giác yên bình và riêng tư. Bên cạnh đó, một góc làm việc nhỏ được bố trí khéo léo, giúp gia chủ có thể làm việc hiệu quả ngay tại nhà.
Phòng tắm được trang bị bồn tắm bằng đá tự nhiên, mang đến trải nghiệm thư giãn tuyệt vời sau một ngày dài.
Không gian ngoài trời với hồ bơi và khu vườn xanh mát là nơi lý tưởng để gia đình thư giãn và tận hưởng những khoảnh khắc vui vẻ bên nhau. Các góc nhỏ được bố trí với ghế sofa êm ái, tạo thành những không gian sinh hoạt chung ấm cúng, nơi các thành viên trong gia đình có thể quây quần bên nhau.
Với thiết kế thông minh, tận dụng tối đa ánh sáng tự nhiên và không gian xanh, ngôi biệt thự không chỉ là nơi để ở mà còn là một tác phẩm nghệ thuật sống động, thể hiện phong cách sống hiện đại và tinh tế của gia chủ."
 
- Phong cách thiết kế : Minimalist, Scandinavian, Industrial,...
 - Vật liệu chính: Gỗ, đá, bê tông, kim loại,...
 - Màu sắc chủ đạo: Trắng, xám, be, xanh lá,...
 - Các khu vực chức năng: Phòng khách, bếp, phòng ăn, phòng ngủ, phòng làm việc, phòng giải trí,...
 - Các yếu tố đặc biệt: Hồ bơi, sân vườn, giếng trời,...
 
Không gian cầu thang gỗ giúp gần gũi với thiên nhiên hơn
Hình ảnh căn Biệt Thự Đẹp Thảo Điền khi về Đêm sáng bừng cả khu vực.
- Tổng diện tích : 550m2
 - Thiết kế Combo Home.
 - Thi công Combo Home.
 - Chụp ảnh Phú Đào
 
  
        
    
    
    
                        




























Xem thêm